Wohnen in Berlin

Apartmenthaus Lietzenburger Straße 79-81


Architekt: Hemprich Tophof Architekten 

Auftraggeber: IRISGERD Immobilien GmbH & Co. Liegebschaften KG

Fertigstellung: in Planung

Fläche: ca. 6.228 m² BGF

LPH: 2-4

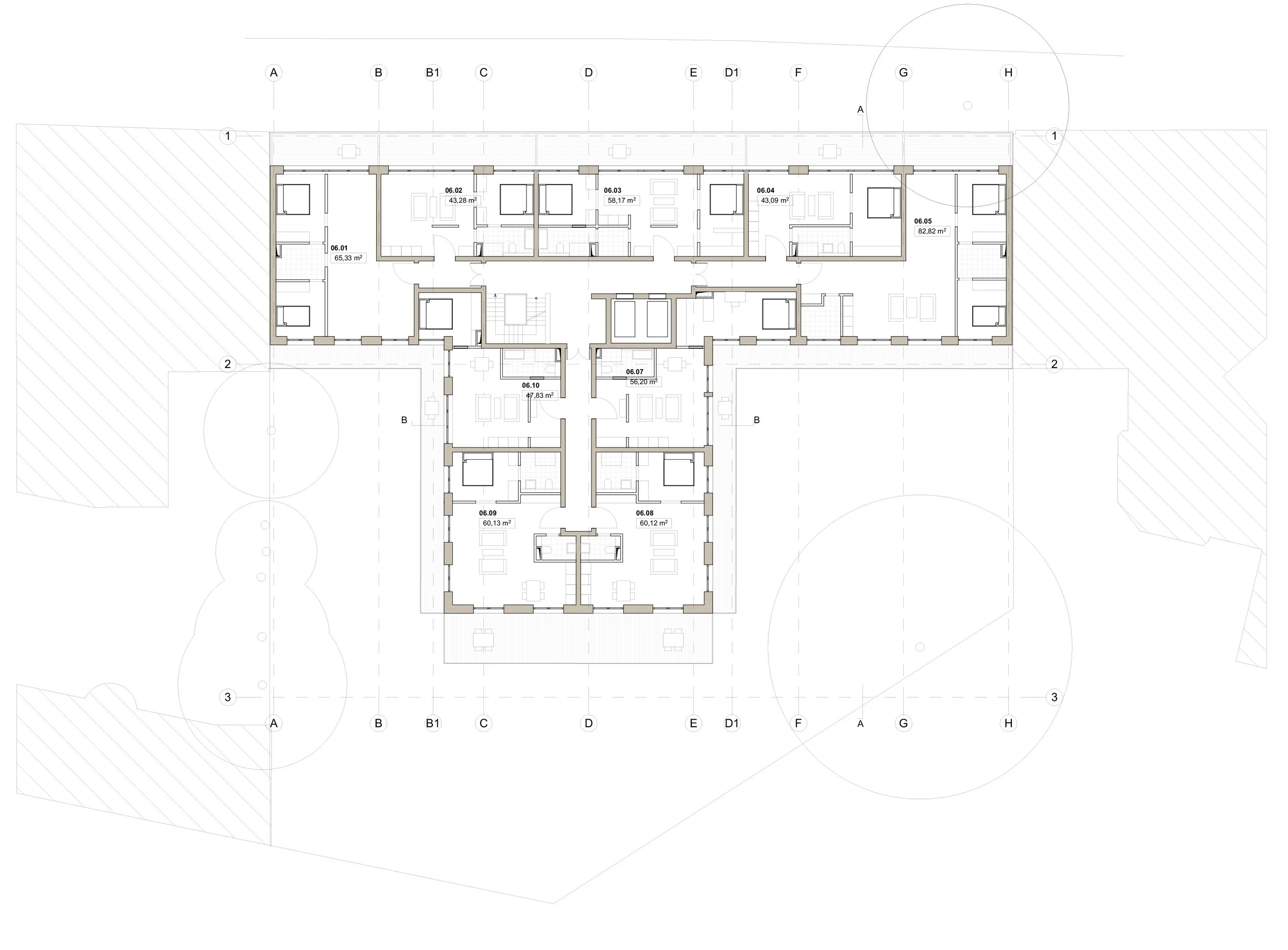
Das Grundstück befindet sich an der Lietzenburger Straße in Berlin-Charlottenburg. Der Neubau orientiert sich an der historischen Bauflucht der Straße. Das architektonische Konzept leitet sich aus der Maßstäblichkeit und der baulichen Tradition des Ortes ab. Die ruhige Fassadengestaltung greift mit ihren Öffnungen die Proportionen der großzügigen Fenster der angrenzenden Bestandsbauten auf und bringt durch die bildhaften „Logen“ die Nutzung des Hauses zum Ausdruck.

Zurück
Zurück

Die alte Dieselelektrozentrale an der Donau

Weiter
Weiter

Ringbahnhöfe Neukölln / Hemprich Tophof Architekten